Vente bureau à Concarneau 190.77m²
Concarneau - Colguen
Réf : 1123
Vente bureau à Concarneau 190.77m²
Concarneau - Colguen
409 918 € *
Westim CBRE
20 quai Commandant Malbert
29200 BREST
Description
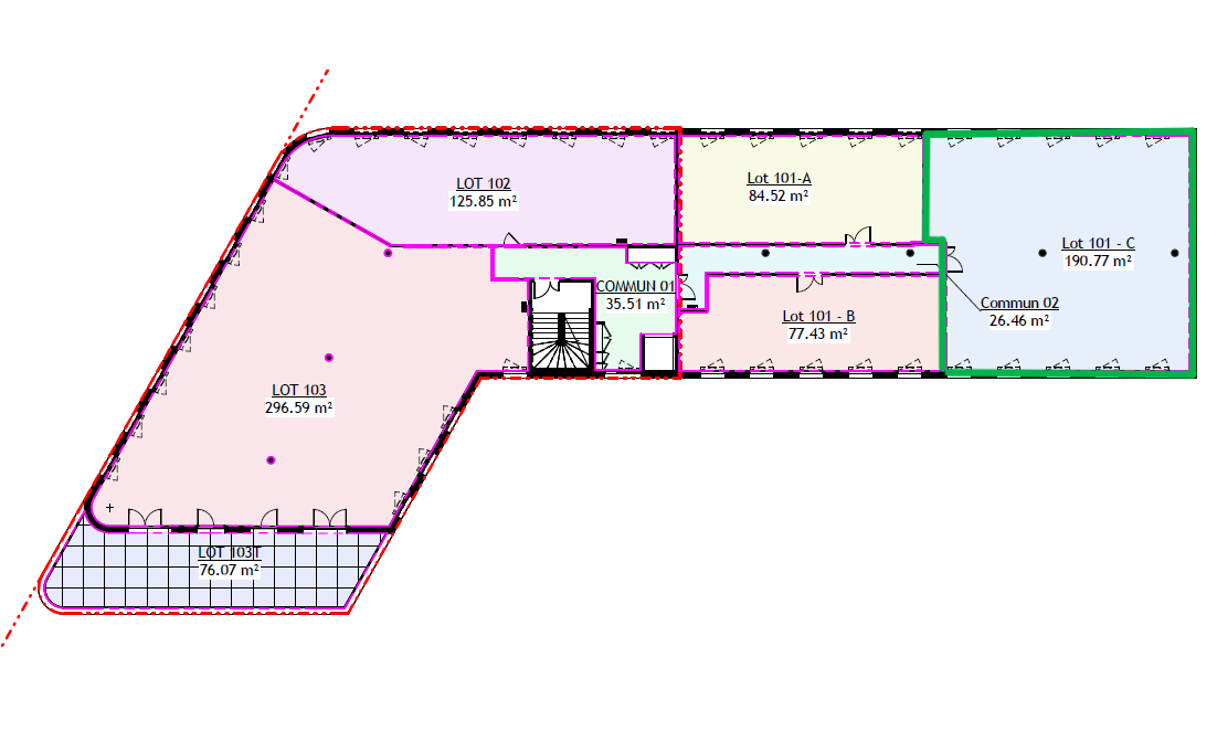
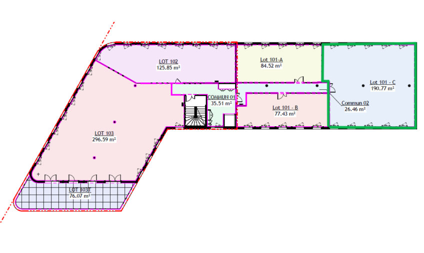
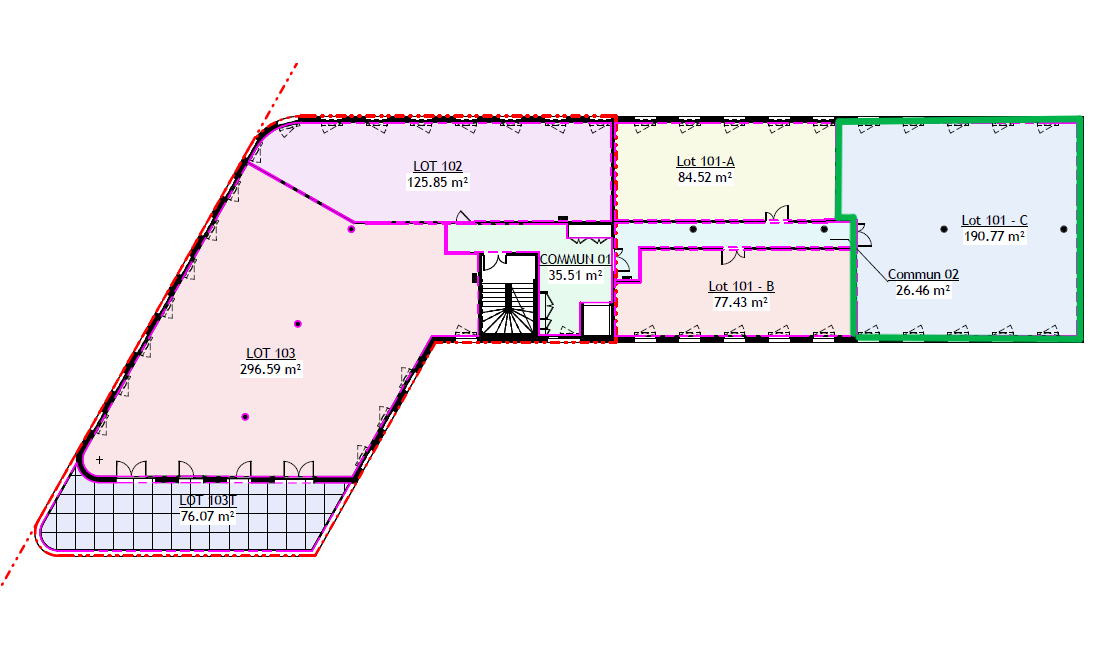
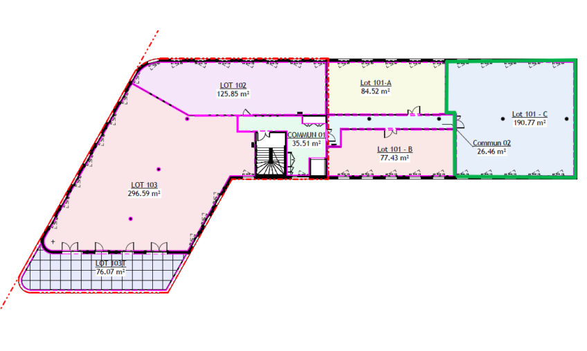
A VENDRE / ALOUER – CONCARNEAU ZONE DE COLGUEN – BUREAUX DE 190 M2
A Concarneau, au coeur de la zone de Colguen, dans un secteur dynamique en plein essor économique, dans un immeuble HQE (Haute Qualité Environnementale) neuf se répartissant sur trois niveaux, au premier étage, un plateau de bureaux de 190,77 m² (lot 101 C), livré brut de béton, fluides en attente.
13 places de parking extérieures privatives.
Honoraires acquéreur 6%TTC du prix de vente HT net vendeur.
Frais de notaire réduits.
LOCATION : Loyer, nous consulter.
Retrouvez toutes nos offres sur www.westim.fr et www.cbre.fr
* 409918.00 € honoraires inclus - 382386 € hors honoraires - Honoraires : 7.2% TTC à la charge de l'acquéreur
Caractéristiques
Surface
Localisation
Localisation
Estimez vos mensualités
Pour calculer les mensualités de ce bien selon vos propres critères, veuillez renseigner le montant de votre apport et la durée de prêt en années que vous envisagez :
