Vente bureau à Brest 768m²
Brest - PORT DE COMMERCE
Réf : 1727
Vente bureau à Brest 768m²
Brest - PORT DE COMMERCE
2 198 016 € *
Westim CBRE
20 quai Commandant Malbert
29200 BREST
Description
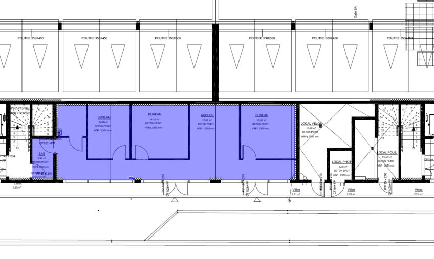
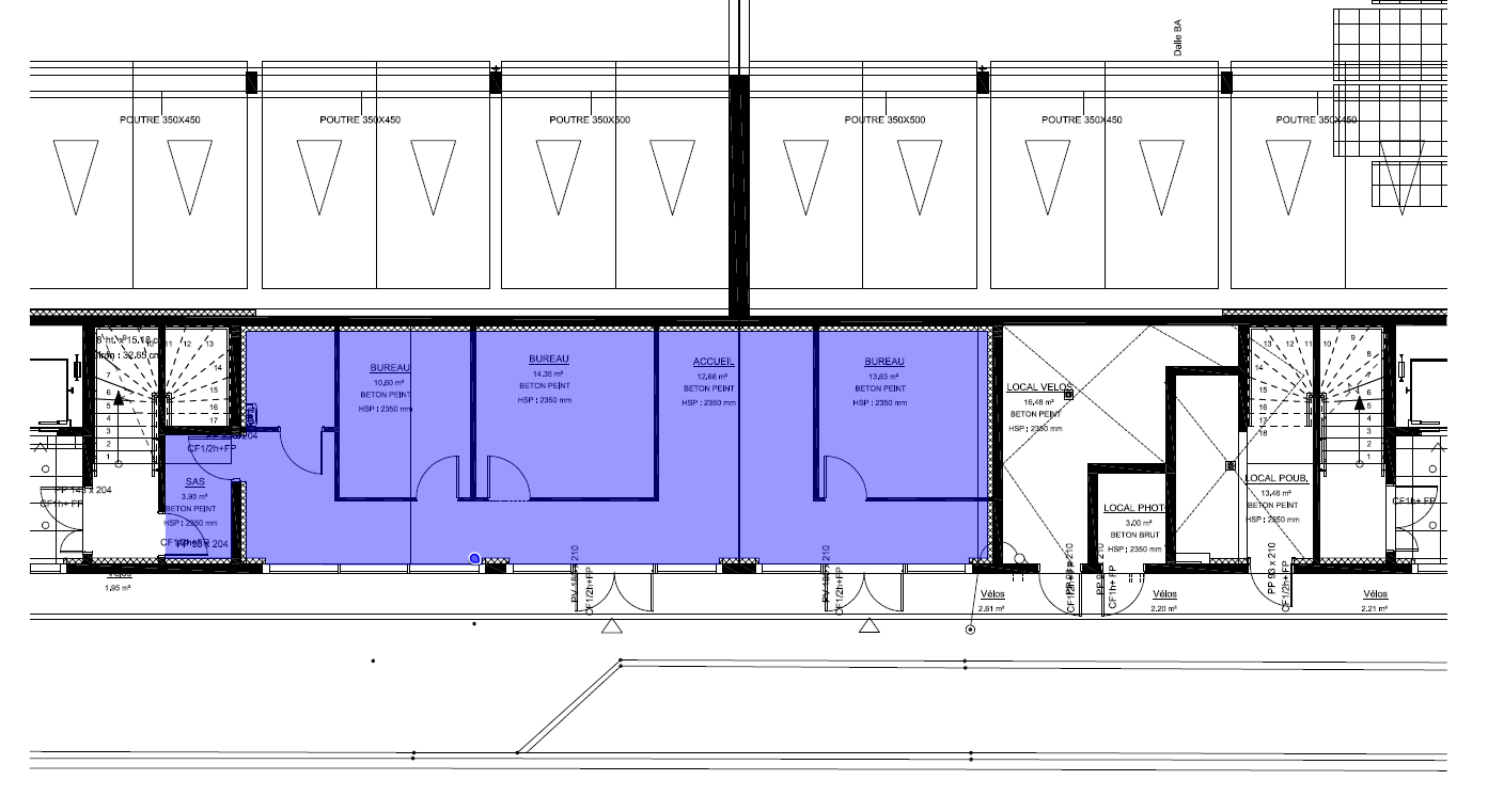
Au coeur du Port de Commerce, dans un bâtiment tertiaire de 2022, au Rdc et 1er étage avec ascenseur, bureaux de 768 m2 comprenant un un accueil, open-space, bureaux privatifs, salles de réunion et sanitaires PMR.
Les bureaux bénéficient de 12 places de stationnement.
Le bâtiment est accessible PMR. Zone de stationnement pour les vélos.
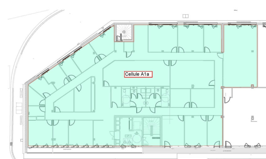
Plateaux divisibles en 2 surfaces :
RDC : 91 m² et 2 parkings
R+1 : 677 m² et 10 parkings
Honoraires de commercialisation : 36%TTC du loyer annuel HT
Rédaction du bail en SUS
Retrouvez toutes nos offres sur www.westim.fr et www.cbre.fr
* 2198016.00 € honoraires inclus - 2073600 € hors honoraires - Honoraires : 6% TTC à la charge de l'acquéreur
Caractéristiques
Surface
Détail des pièces
Localisation
Localisation
Estimez vos mensualités
Pour calculer les mensualités de ce bien selon vos propres critères, veuillez renseigner le montant de votre apport et la durée de prêt en années que vous envisagez :
