Location bureau à Brest 768m²
Brest - PORT DE COMMERCE
Réf : 1712
Location bureau à Brest 768m²
Brest - PORT DE COMMERCE
14 720 € **
Westim CBRE
20 quai Commandant Malbert
29200 BREST
Description
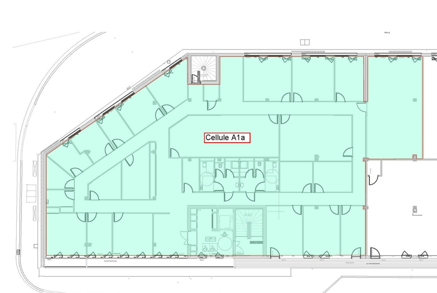
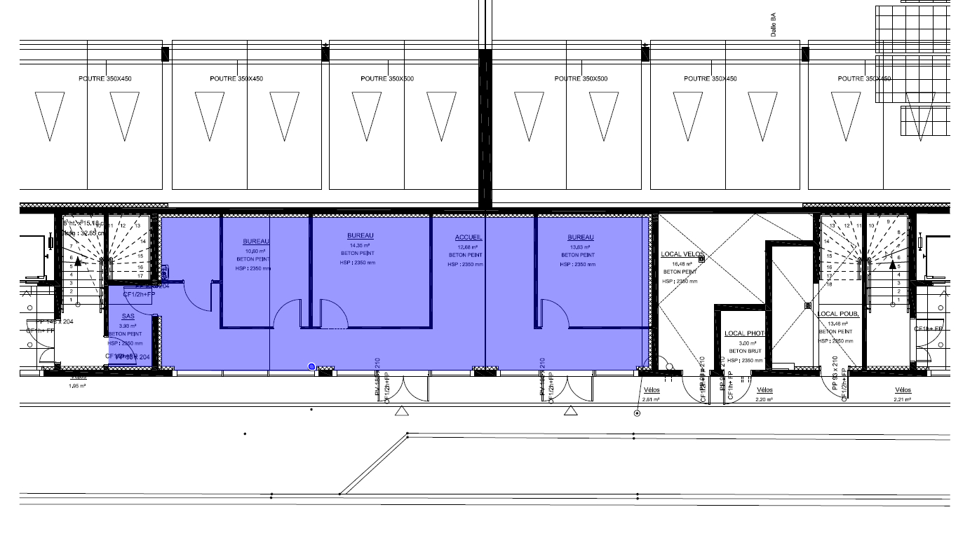
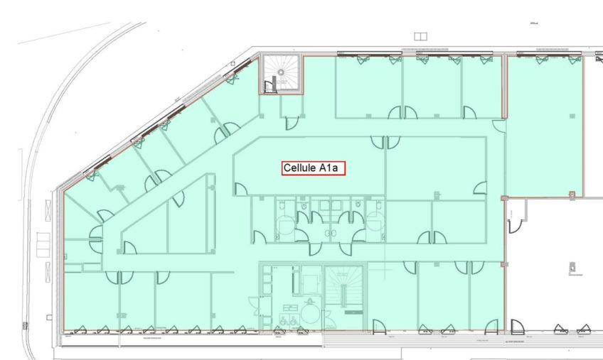
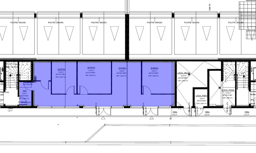
Au coeur du Port de Commerce, dans un bâtiment tertiaire de 2022, au Rdc et 1er étage avec ascenseur, bureaux de 768 m2 comprenant un un accueil, open-space, bureaux privatifs, salles de réunion et sanitaires PMR.
Les bureaux bénéficient de 12 places de stationnement.
Le bâtiment est accessible PMR. Zone de stationnement pour les vélos.
Plateaux divisibles en 2 surfaces :
RDC : 91 m² et 2 parkings
R+1 : 677 m² et 10 parkings
Honoraires de commercialisation : 36%TTC du loyer annuel HT
Rédaction du bail en SUS
Retrouvez toutes nos offres sur www.westim.fr et www.cbre.fr
** Loyer 14720 €/mois charges comprises
dont charges récupérables: 1167 €/mois (Remboursement annuel par le locataire) | Honoraires charge locataire: 63590 € TTC | Dépôt de garantie : 44160 € |
29200 BREST
| Surface habitable: 768 m²
